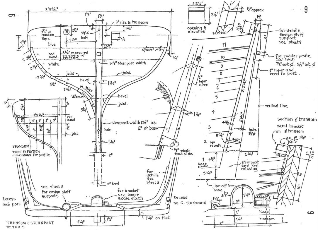
Les plans présentés ci-dessous sont les relevés exécutés sur la chaloupe-amiral originale conservée au Musée National d’Irlande à Dublin

















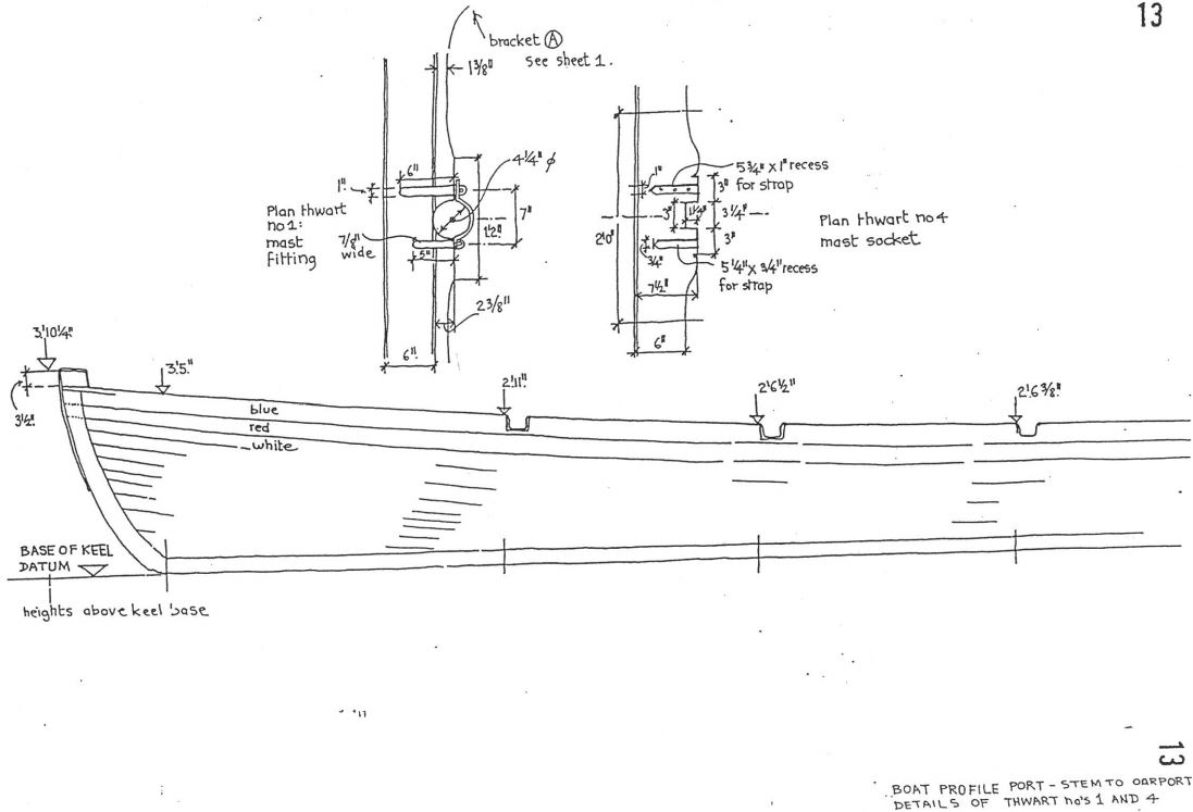
Les plans présentés ci-dessous sont les relevés exécutés sur la chaloupe-amiral originale conservée au Musée National d’Irlande à Dublin
















